Hopp til innhold
  1. Malling.no/
  2. Lokaler til leie/
  3. Øvre Vollgate 11
Kontor
Fra 800 til 5000 m²

Øvre Vollgate 11, 0158 Oslo, Oslo

Øvre Vollgate 11-13

Her utvikles tidløse kontorer med oppmerksomhet på bærekraft, fleksibilitet og gode tekniske funksjoner. Eiendommen rehabiliteres og er ferdig for overtakelse i desember 2025. Bygget har en unik karakter som knytter opprinnelig konstruksjon med moderne designelementer.

Nøkkelinformasjon

  • InnflyttingQ3 2025
  • Kontorplasser10
  • P-plasser3
  • Renovert år2025
  • Etasje6.
  • EnergimerkingB
  • Type lokaleKontor
  • BeliggenhetOslo
  • Totalt arealFra 800 til 5000 m²
  • AdresseØvre Vollgate 11, 0158 Oslo, Oslo

Område

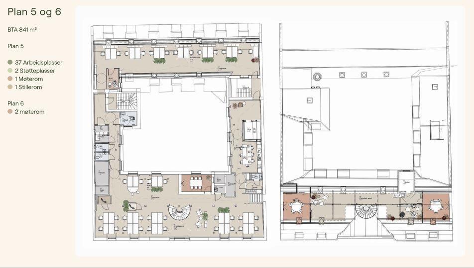
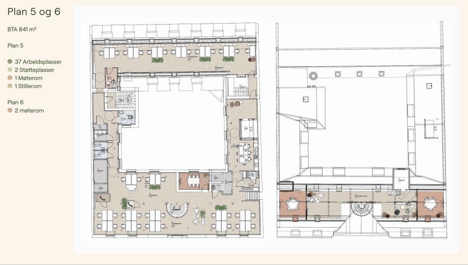
Plantegninger

Fasiliteter

Eiendommen har fellesfunksjoner med Øvre Vollgate 13, som resepsjon/ kaffebar, kantine, møtesenter, podcast rom, sykkelparkering, garderobe og trimrom.

  • kaffebar
  • kantine
  • møterom
  • resepsjon
  • garderobe
  • trening
  • sykkelparkering
  • bredbånd
  • Alarm
  • heis
  • shirtCleaning
  • balkong

Om gårdeier

Anthon Eiendom er et eiendoms-selskap som utvikler og forvalter næringseiendom i Stor-Oslo. Virksomheten har en mer enn 20 år lang historie med utvikling av eiendommer i egen regi eller på oppdrag for andre.

Både som utvikler og utleier drives vi av ønsket om å skape frydefulle og effektive hverdager for dem som bruker eiendommene og omgivelsene rundt eiendommene. Det innebærer at vi må skape eiendommer med god arkitektur, bærekraftige kvaliteter og effektive arealer.

Kontakt megler

Håkon Tanberg
Rådgiver utleie / Partner