Hopp til innhold
  1. Malling.no/
  2. Lokaler til leie/
  3. Stortingsgaten 28
Kontor, Handel
Fra 680 til 680 m²

Stortingsgata 28, 0161 Oslo

Funkisperlen med Oslos beste beliggenhet

Rett over gaten for Nationaltheatret T-banestasjon ligger et av Oslos beste og mest sentrale kontorbygg. Den verneverdige funkisperlen, Stortingsgaten 28, gjennomgår nå en omfattende oppgradering hvor alt av innvendige kvaliteter får et betydelig løft.

Eiendommen ble reist i 1933 og er en av landets første funkisbygg. Funksjonalismens mantra «form følger funksjon» har tålt tidens tann og eiendommen byr den dag i dag på svært fleksible arealer. I renoveringsarbeidet videreføres funksjonalismens formspråk og idealer, noe som gir moderne kontorarealer i en funksjonalistisk innpakning.

Det meste av bygget er utleid, men det gjenstår to ledige arealer i byggets tredje og fjerde etasje. Lokalene kan skreddersys leietakers behov og ferdigstilles andre halvår 2025.

Nøkkelinformasjon

  • InnflyttingAndre halvår 2025
  • GårdeierFremutleier Cappelen Damm
  • KontorplasserAvhenger av løsning
  • Byggeår1933
  • Renovert år2025
  • Etasje3.
  • EnergimerkingB
  • Type lokaleKontor, Handel
  • BeliggenhetOslo
  • Totalt arealFra 680 til 680 m²
  • AdresseStortingsgata 28, 0161 Oslo

Beliggenhet

Når sentral beliggenhet ikke kan overdrives
Alle skryter av sentral beliggenhet, men ikke alle mener det helt og fullt. For Stortingsgaten 28 kan imidlertid ikke den gode beliggenheten overdrives. Ingen av kontorbyggene i Vika ligger nærmere Nationaltheatret T-banestasjon enn Stortingsgaten 28.

I området finner du ikke bare flere av landets ledende finans- og rådgivermiljøer, du finner også hovedstadens beste spisesteder og Oslos beste shopping gater. I Stortingsgaten 28 er du med andre ord tett på alt det som virkelig betyr noe i en travel hverdag.

Område

  • Buss1 min
  • T-bane1 min
  • Trikk1 min
  • Tog1 min
  • Ferge3 min

Lokalene

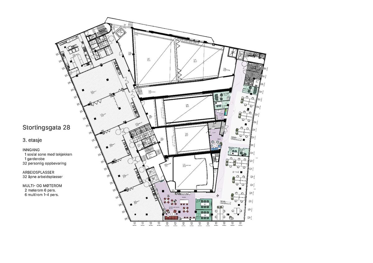
De ledige lokalene har et samlet areal på 2604 kvadratmeter og varierer i størrelser på mellom 680 til 1924 kvadratmeter. Etasjene kan knyttes sammen med interntrapp.

Antall arbeidsplasser avhenger av løsning:

  • 3. etg.: 680 kvm
    32 landskapsplasser / 6 kontorplasser

Tilrettelagt for en hyggelig og effektiv arbeidsdag

I tillegg til landets beste fasiliteter rett utenfor døren, byr Stortingsgaten 28 selv på en rekke gode fellesfasiliteter.

I byggets underetasjer er det både bedriftsrestaurant, sykkelparkering og garderober.

Eiendommen har et bredt servicetilbud, med blant annet møteromssenter, resepsjon/kafé og event-lokaler i underetasjen. Disse fasilitetene kan disponeres etter avtale med utleier.

  • sykkelparkering
  • kantine
  • møterom
  • kaffebar
  • garderobe
  • resepsjon

Fremutleier

Cappelen Damm har formildet leseropplevelser og kunnskap i mer enn 150 år og er et heleid datterselskap av Egmont. Cappelen Damm er Norges eldste og største kulturforlag, og har et betydelig ansvar for å formidle kunnskap, meninger, kunst- og underholdningslitteratur i alle formater og i alle kanaler. Til sammen lanserer forlaget om lag 3000 nyutgivelser årlig i analoge og digitale formater.

Kontakt megler

Live Melhuus
Rådgiver utleie
Håkon Tanberg
Rådgiver utleie / Partner