Hopp til innhold
  1. Malling.no/
  2. Lokaler til leie/
  3. Storgata 28 – Utadrettet
Handel, Kombinasjonslokaler, Verksted
Fra 125 til 1660 m²

Storgata 28, 0184 Oslo, Oslo

Unik mulighet – Rimelige butikklokaler i historisk bygg, midt i Oslo sentrum!

Butikk, showroom, studio, eller kontor på gateplan. Store fine vinduer og adkomst sikrer godt lys og gode eksponeringsmuligheter.

Gi din bedrift en unik mulighet – kontakt oss i dag!


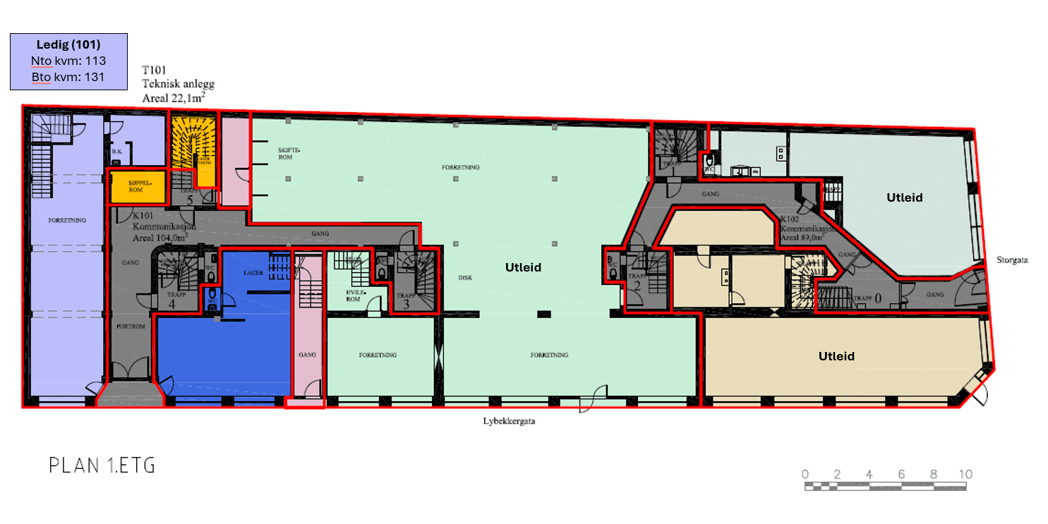
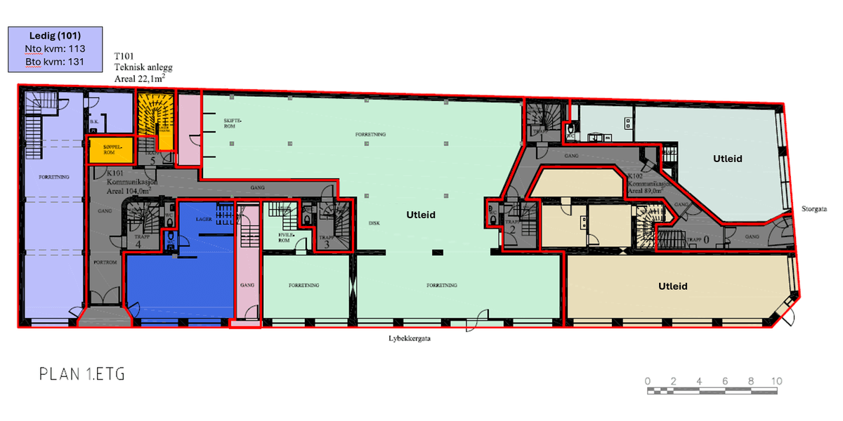
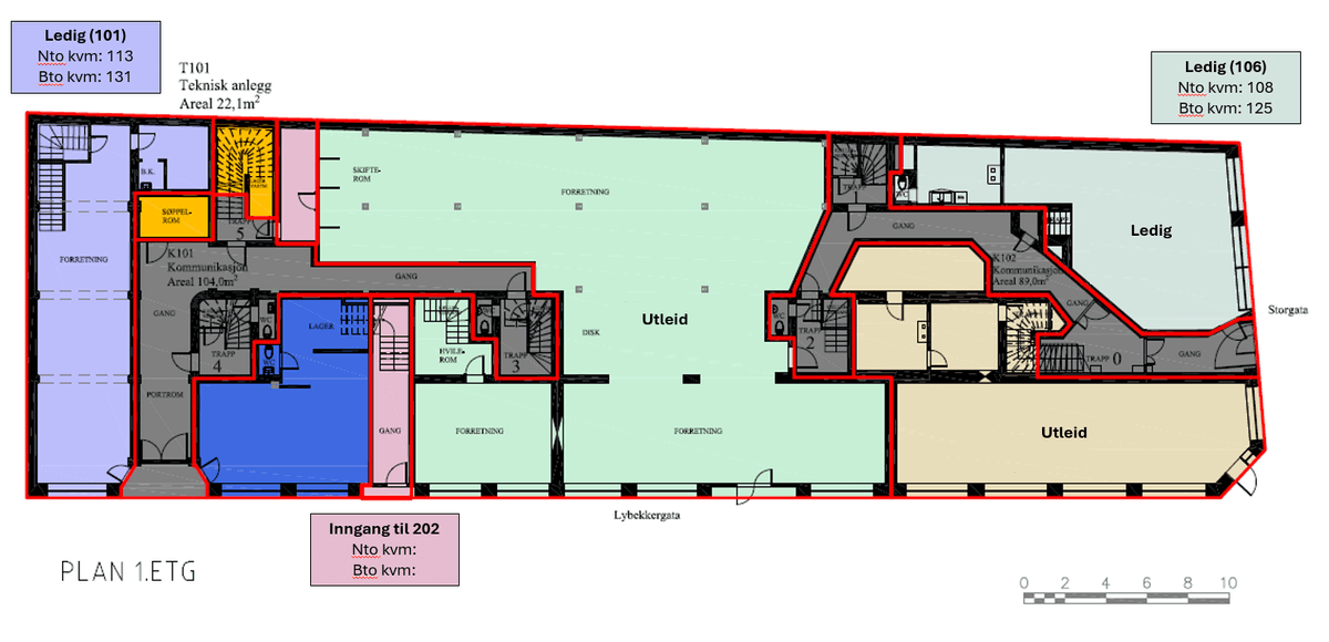
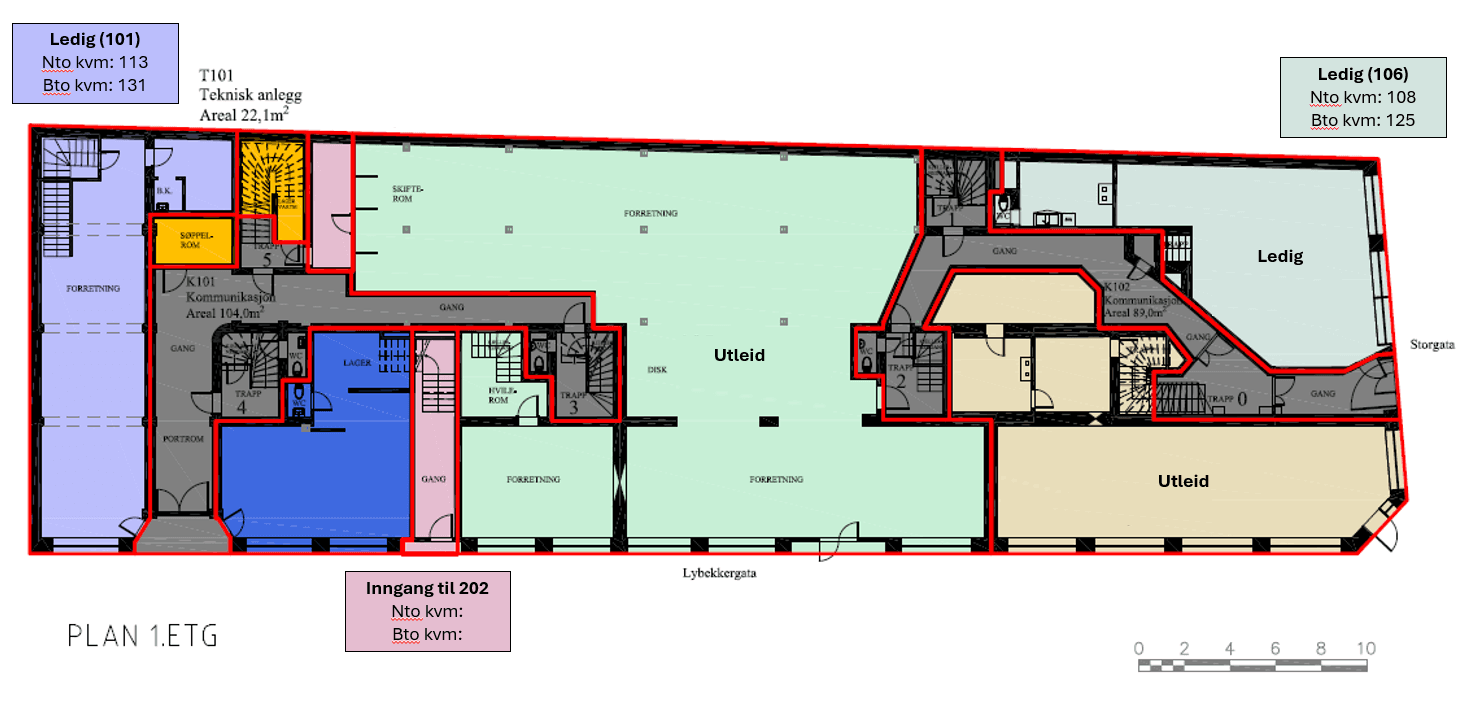
Eiendommen tilbyr lokaler med ulike størrelser:
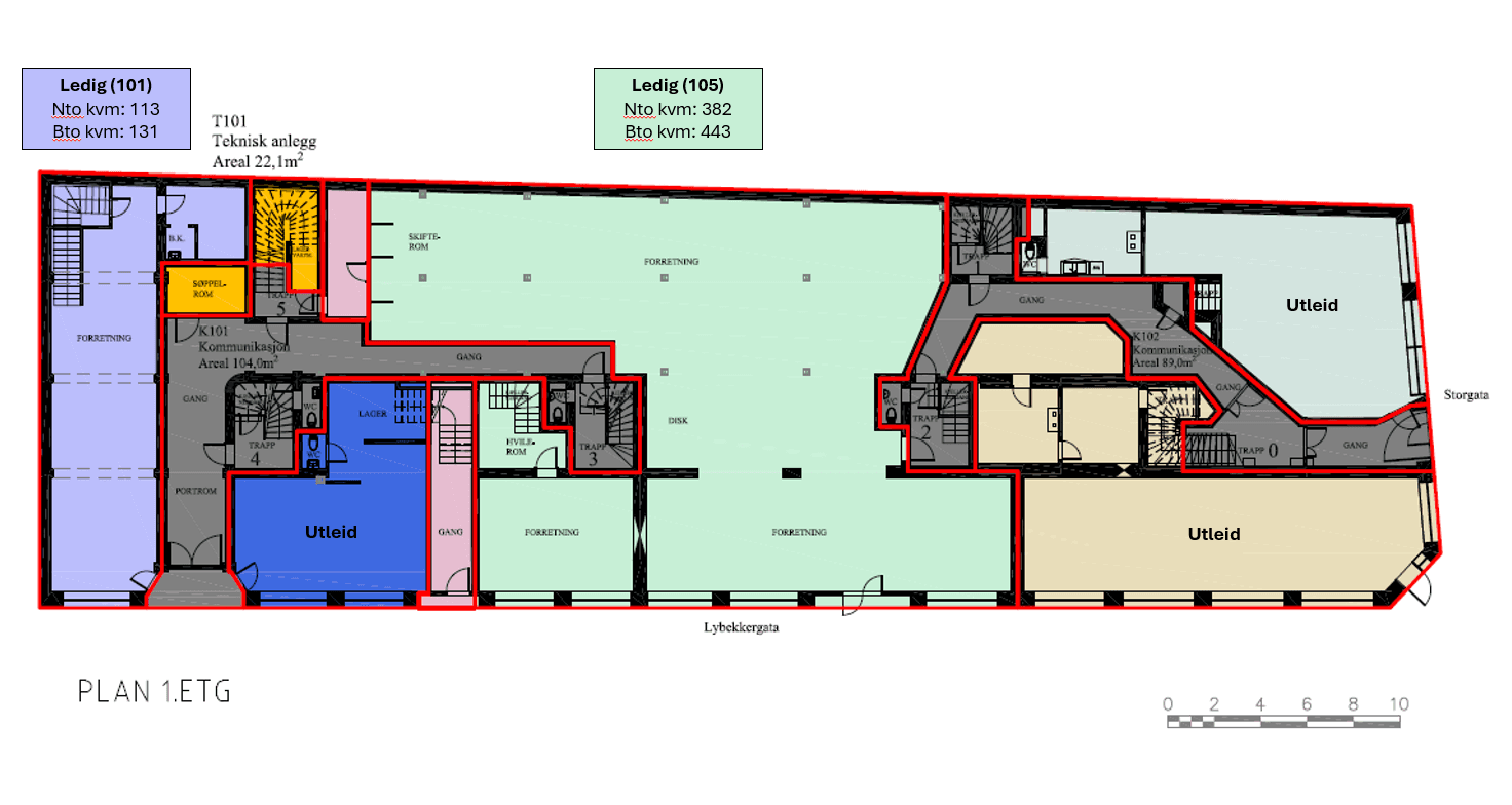
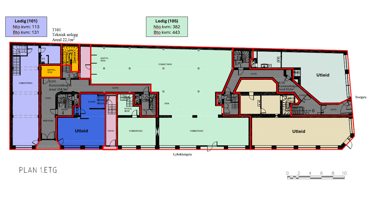
1. Etasje:
- 125 kvm.
- 443 kvm.
- 125 kvm.
Arealene i 1.etasje har tilgang/mulighet til lager i underetasjen og interntrapp til 2.etasje

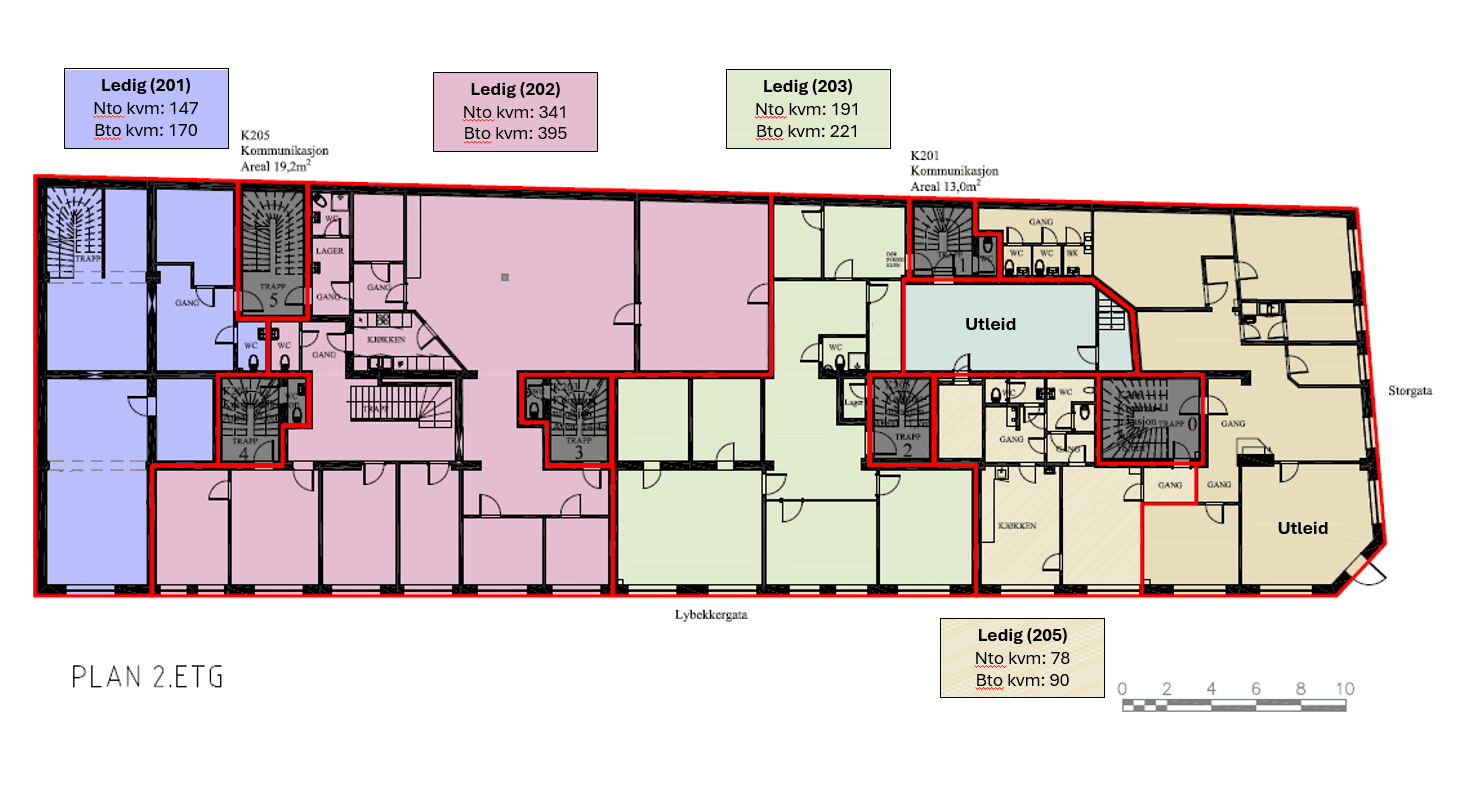
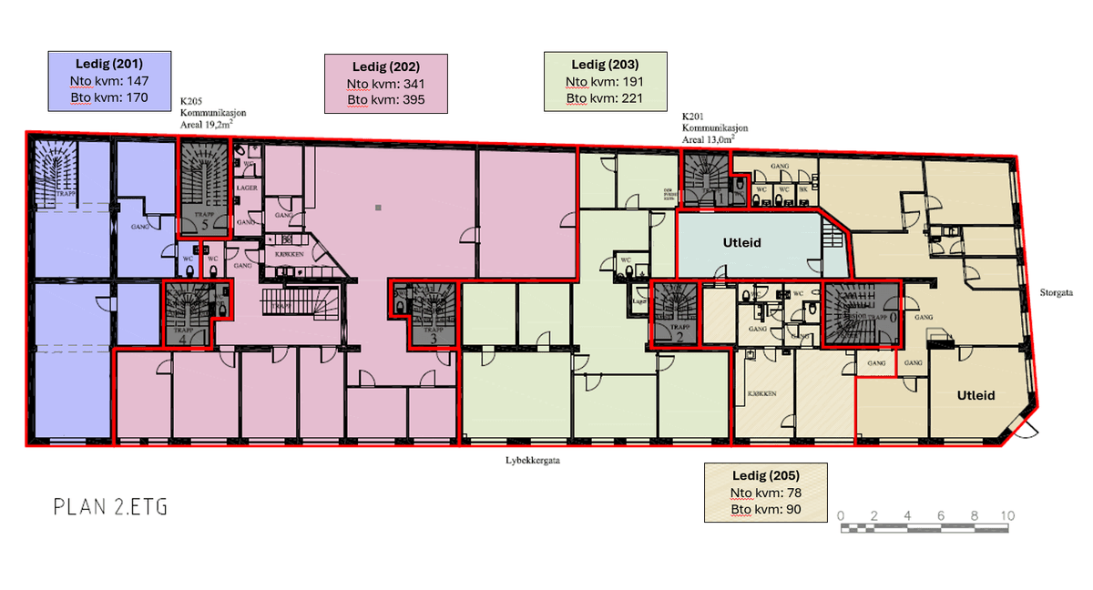
2.etasje:
- 599 kvm. - inkluderer eksklusiv inngang fra 1.etasje
- 361 kvm.
Arealene kan også leies samlet

Nøkkelinformasjon

  • InnflyttingLedig nå
  • GårdeierMalling & Co Property Partners
  • Byggeår1895
  • Etasje1.
  • Type lokaleHandel, Kombinasjonslokaler, Verksted
  • BeliggenhetOslo
  • Totalt arealFra 125 til 1660 m²
  • AdresseStorgata 28, 0184 Oslo, Oslo

Med kundene rett utenfor døren

Storgata 28 har Oslo restauranttilbud, handel, kultur og opplevelser rett utenfor døren. Operaen er i kort gåavstand, samt Deichmanske bibliotek med hyppige arrangementer. Populære konsertarealer som Sentrum Scene og Oslo Spektrum er få minutter unna, samt flotte restauranter som Dattera til Hagen, Fiskeriet, HIMKOK, Tavernaen og Cafe Sør.

Youngstorget er rundt nærmeste hjørne med Oslo Street Food, konserter og populære restauranter og utesteder. Oslo City har butikker som skaper en effektiv arbeidsflyt hvis man på kort varsel trenger elektronikk eller arbeidsutstyr. Yrende møteplasser som Kulturhuset, Youngskvartalet, Østbanehallen og Byporten er i kort avstand, samt Munch-museet og Folketeatret. Nærhet til butikker, restauranter og opplevelser, samt plassering rett i kjernen av kollektivtrafikken, gjør dette til et smart valg for en sømløs og effektiv arbeidshverdag.

Område

  • Buss og flybuss2 min gange
  • T-bane2 min gange
  • Trikk0 min gange
  • Tog2 min gange

Plantegninger

Fasiliteter

  • sykkelparkering

Gårdeier

Malling & Co Property Partners har lang erfaring med å tilrettelegge prosjekter for profesjonelle eiendomsinvestorer og har sikret solid, risikojustert avkastning for investorer.

I april 2016 etablerte Malling & Co Investment Management Malling & Co Eiendomsfond. Fondet er ubelånt og investerer i lavrisiko næringseiendom i de største byene i Norge. Fondet henvender seg kun til profesjonelle investorer. Malling & Co Investment Management er registrert som eiendomsforvalter hos Finanstilsynet.

Kontakt megler

Jørgen Kaada-Rønning
Rådgiver Utleie kontor / Partner