- Malling.no/
- Lokaler til leie/
- Staffeldts
Kontor
Fra 300 til 2600 m²
Staffeldts Gate 2, 0166 Oslo, Oslo
Nøkkelinformasjon
- InnflyttingQ3-2027
- Byggeår1935
- Renovert år2026
- Type lokaleKontor
- BeliggenhetOslo
- Totalt arealFra 300 til 2600 m²
- AdresseStaffeldts Gate 2, 0166 Oslo, Oslo
Område
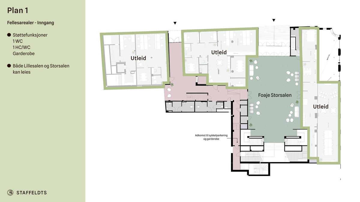
Plantegninger
Fasiliteter
- balkong
- garderobe
- trening
- sykkelparkering
- sykkelservice
- heis
- Alarm
- bredbånd
- utsikt
Prospektside
Kontakt megler
Jørgen Kaada-Rønning
Rådgiver Marked og Utleie Kontor Oslo