- Malling.no/
- Lokaler til leie/
- Smalvollveien 28
Kontor, Produksjon/Industri, Lager/Logistikk, Kombinasjonslokaler, Verksted, Garasje/Parkering, Andre
1250 m²
Smalvollveien 28, 0667 Oslo, Norge
Fleksibelt og moderne kombinasjonslokale
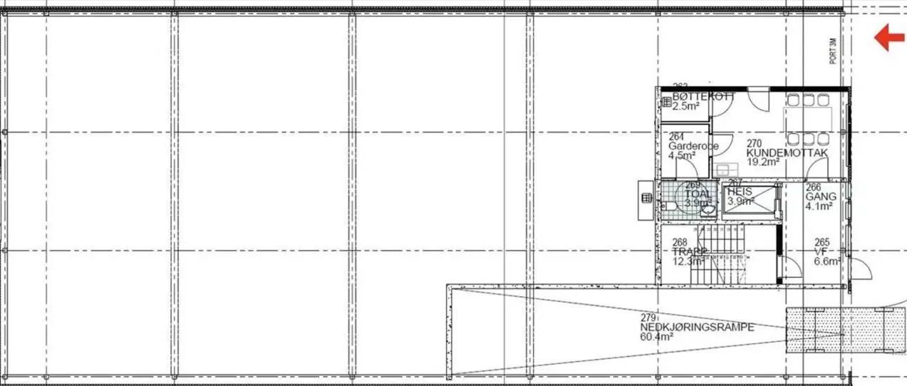
Eiendommen tilbyr en effektiv og funksjonell planløsning over flere plan:
Underetasje: Egen parkeringskjeller med plass til ca. 15 biler.
1. etasje: Romslig lager på ca. 440 kvm med svært god takhøyde, ca. 6,60 m (ca. 5,6 m under drager). Arealet gir også mulighet for etablering av resepsjon eller kundemottak.
2. etasje: Moderne kontorarealer bestående av åpent landskap, cellekontorer, kjøkken, garderober og to WC.
Bygget er oppført i henhold til TEK10.
Nøkkelinformasjon
- GårdeierMalling & Co Næringsmegling AS
- Type lokaleKontor, Produksjon/Industri, Lager/Logistikk, Kombinasjonslokaler, Verksted, Garasje/Parkering, Andre
- BeliggenhetOslo
- Totalt areal1250 m²
- AdresseSmalvollveien 28, 0667 Oslo, Norge











