Hopp til innhold
  1. Malling.no/
  2. Lokaler til leie/
  3. Skøyen Atrium fremleie
Kontor, Annet
Fra 721 til 721 m²

Drammensveien 147, 0277 Oslo, Oslo

Skøyen Atrium - Kontor/kombi/klinikklokale til leie sentralt på Skøyen

Skøyen Atrium er 62.000 kvadratmeter og er et av Oslos største kontorbygg,

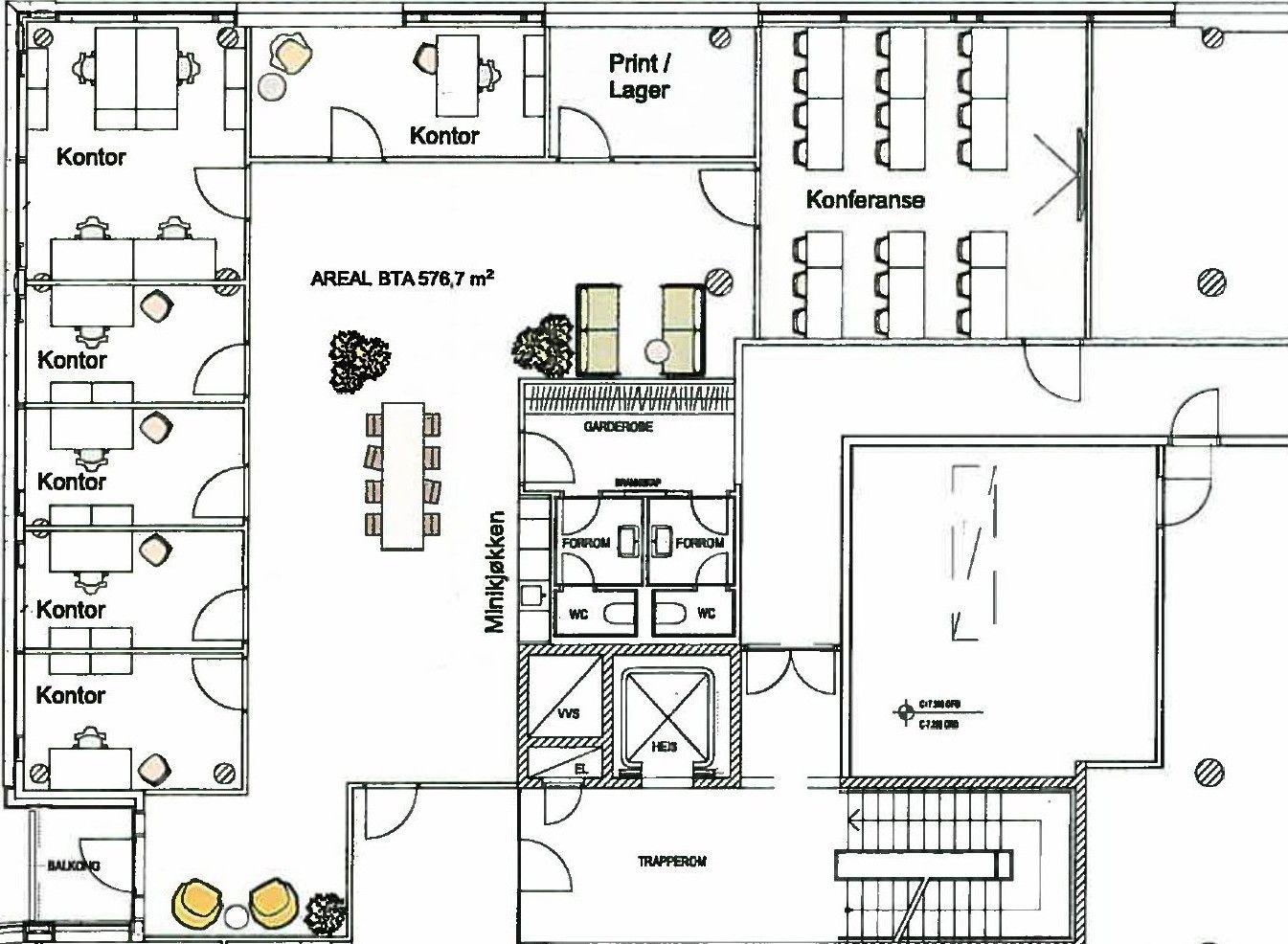
Kontor/kombi/klinikklokale til leie i byggets 2.etasje - 721 kvm.
Egen inngang fra gateplan.

Nøkkelinformasjon

  • P-plasser5
  • Etasje2.
  • Type lokaleKontor, Annet
  • BeliggenhetOslo
  • Totalt arealFra 721 til 721 m²
  • AdresseDrammensveien 147, 0277 Oslo, Oslo

Den mest sentrale delen av Skøyen
Området Skøyen markerer starten på det urbane Oslo i vest og er et knutepunkt. Området er i rivende utvikling og det er nærhet til det aller meste av servicefasiliteter og offentlig kommunikasjon.

Alle veier fører til Skøyen
Skøyen Atrium ligger bare tre minutter fra Skøyen stasjon. Buss og trikk stopper nærmest rett utenfor inngangsdøren. Alle lokal- og regionaltog stopper her Flytoget har fem avganger per time, og du er på Gardermoen på ca. 30 minutter. Alle regionbusser stopper for øvrig på Skøyen, i tillegg er det mange lokale bussruter som sikrer god adkomst fra Oslo til Skøyen. Rute 13 mellom Storo/Grefsen stasjon og Lilleaker/Bekkestua stopper rett utenfor.

Skøyenområdet er allerede godt utbygd med gang- og sykkelveier. Kommer du med bil til jobben i Skøyen Atrium er adkomsten enkel fra E18 i både nord- og sørgående retning. Skøyen Atrium ligger bare tre minutters gange fra stasjonen. Buss og trikk stopper rett utenfor døren, Tvers over gaten og under toglinjen mot syd ligger Karenslyst Allé, med shopping og serveringsteder.

Område

Del 1

  • 8 klinikkrom

  • 2 rom som i dag er benyttet til lab

  • Resepsjon

  • Ventesone for pasienter

  • 2 toaletter inkl. 1 HCWC

  • Print/lager

Del 2

  • 6 cellekontorer

  • Print/lager

  • 1 stort møterom

  • 2 toaletter

  • Sosialsone/bespisning

Fasiliteter

Eiendommen er et av markedets mest innovative bygg med tanke på dagens og fremtidens arbeidsformer. Skøyen Atrium er et helt kvartal med flotte fellesarealer, høyt servicenivå, to kantiner og kan tilby et moderne konferanse- og møtesenter med plass til å invitere store forsamlinger hvor det kan skreddersys møter og arrangementer for grupper fra 4 til 200 personer. Rommene er innredet med videokonferanse, touch-skjermer og gode lydanlegg. Restaurantene i Skøyen Atrium kan være behjelpelig med servering, deriblant Skøyen Gastrobar som du finner i byggets første etasje. Her serveres smakfulle retter med sesongbaserte råvarer.

  • resepsjon
  • kantine
  • garderobe
  • trening
  • garasje
  • lading
  • sykkelparkering
  • møterom
  • kaffebar
  • balkong
  • Service app

Gårdeier

Skøyen Atrium eies av Schage Eiendom som har et langsiktig eierperspektiv og et utpreget kundefokus. Schage Eienedom er et familieeid eiendomsselskap og har verdier som solid, langsiktig, samarbeidsvillig og modig. Fremleier: Falck Norge AS

Kontakt megler

Svein Anders Heggset
Rådgiver Utleie