Hopp til innhold
  1. Malling.no/
  2. Lokaler til leie/
  3. Sjølyst Plass 3
Kontor
Fra 913 til 913 m²

Sjølyst Plass 3, 0278 Oslo, Oslo

Midt på Karenslyst Allé og med et mylder av opplevelser rett utenfor døren. Attraktivt alternativ for alle leietakere som er på jakt etter kvalitetskontorer med gode fellesfasiliteter.

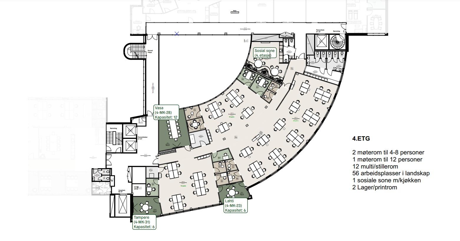
I byggets 4.etasje er det tilgjengelig 913 kvm.

Korte fakta om bygget

  • Samlet areal på 24 600 kvadratmeter

  • Nydelig utsikt mot Bygdøy og handelsgaten Karenlyst allé

  • Gode fellesfasiliteter

  • God parkeringskapasitet

Nøkkelinformasjon

  • InnflyttingLedig nå
  • GårdeierSB1
  • Type lokaleKontor
  • BeliggenhetOslo
  • Totalt arealFra 913 til 913 m²
  • AdresseSjølyst Plass 3, 0278 Oslo, Oslo

Skøyen er én av Oslos mest attraktive kontordestinasjoner. Områdets svært gode kollektivdekning, kontorer av høy kvalitet og et levende nabolag, er noen av grunnene til at flere av landets ledende selskaper har valgt, og blir værende, på Skøyen.

Område

Ledig areal 4.etasje:

56 arbeidsplasser i landskap
2 møterom til 4-8 personer
1 møterom til 12 personer
12 multi/stillerom
1 sosial sone m/kjøkken
2 lager/print
5 toaletter

Gode fellesfasiliteter er prikken over i-en og det som gjør et godt kontorbygg enda bedre. I No 2 ønskes du velkommen av et vakkert og innbydende loungeområde, hvor lukten av kaffe og gjærbakst lekent erter smaksløkene. En enestående personalrestaurant som også kan benyttes til uformelle møter.

  • kantine
  • garderobe
  • garasje
  • sykkelparkering
  • kaffebar
  • resepsjon

SpareBank 1 Forsikring
Eier og forvalter kontorbygget Sjølystplass 2, samt resten av eiendomsmassen rundt Karenslyst allé. Selskapet har en langsiktig tilnærming til alle sine investeringer, noe som er en av årsakene til at de nå tar et helhetlig grep rundt utviklingen på Sjølyst.

Målet er at Sjølyst skal bli et attraktivt sted å være både for kontorbrukere, men også naboer og andre som bor og ferdes i området.

SpareBank 1 Forsikrings eiendomsportefølje består av 12 eiendomsselskaper med totalt 152 000 kvadratmeter leieareal beliggende sentralt i Oslo. Majoriteten av eiendommene er lokalisert rundt trafikknutepunktene Skøyen og i Oslo sentrum (Indre by).

Kontakt megler

Svein Anders Heggset
Rådgiver Utleie