Hopp til innhold
  1. Malling.no/
  2. Lokaler til leie/
  3. Sjøfartsbygningen
Kontor, Verksted
Fra 700 til 1000 m²

Kongens Gate 6, 0153 Oslo, Oslo

I 2025 ledigstilles flotte og lyse lokaler på ca. 1.000 m² i 3. etasje, og ca. 700 m² i 4. etasje. Lokalene består i dag av en åpen løsning med møterom, stillerom og sosiale soner. Standarden på lokalene er god og kan overtas as-is eller tilpasses etter ønske.

Nøkkelinformasjon

  • Innflytting2025
  • Type lokaleKontor, Verksted
  • BeliggenhetOslo
  • Totalt arealFra 700 til 1000 m²
  • AdresseKongens Gate 6, 0153 Oslo, Oslo

Beliggenhet

Kongens gate 6 har en svært sentral og ettertraktet beliggenhet i Kvadraturen, som knutepunktet mellom de ulike delene av Oslo sentrum. Her finner du alt du kan ønske deg av restauranter, kaffebarer og offentlig transport bare noen skritt unna.

Oslo S/Jernbanetorget, Stortinget T-banestasjon og Karl Johans gate ligger kun en kort spasertur fra eiendommen. Fra Oslo S/Jernbanetorget har du tilgang til tog, flytog, T-bane, trikk og buss, mens Kvadraturen betjenes av flere buss- og trikkelinjer med hyppige avganger.

Område

  • Buss2 min
  • Trikk3 min
  • T-bane4 min
  • Tog10 min

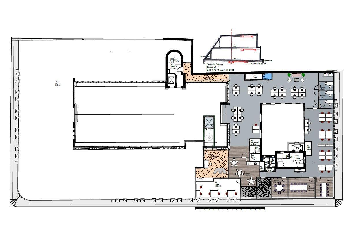
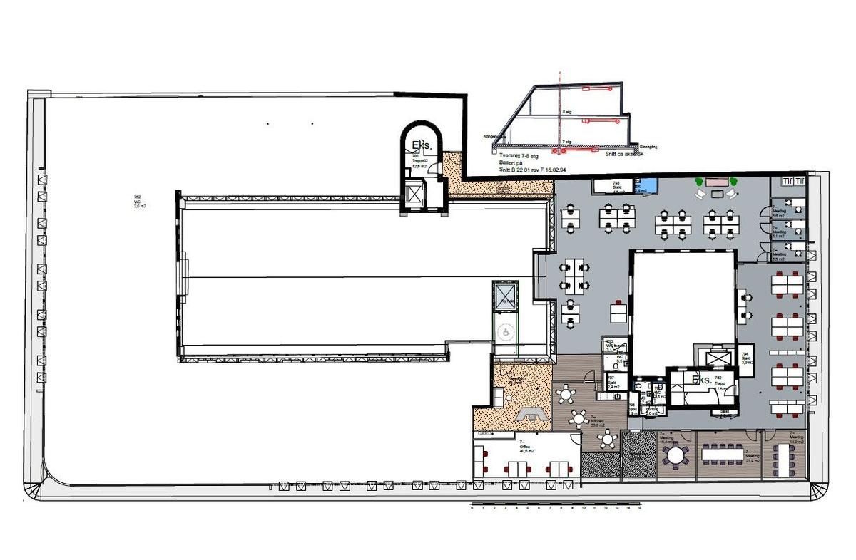
Plantegninger

Inntil 60 arbeidsstasjoner tilsvarer 16,7 kvm/ansatt. Lokalet inkluderer sosial- og møteroms sone i tillegg til støttefunksjoner.

Fasiliteter

En av Oslos' beste bedriftsrestauranter drevet av Furseth Gruppen, resepsjon med kaffebar, felles takterrasse, møteromssenter inkludert auditorium, sykkelparkering m/sykkelvask, samt tørkeskap, garderober m/dusj og skap.

  • møterom
  • resepsjon
  • kantine
  • kaffebar
  • balkong
  • garderobe
  • lading
  • sykkelparkering
  • utsikt
  • sykkelservice

Gårdeier

Heleid datterselskap av Major og Advokat Eivind Eckbos Legat

Kontakt megler