Hopp til innhold
  1. Malling.no/
  2. Lokaler til leie/
  3. Rosenkrantzgate 16-18
Kontor
Fra 1000 til 7800 m²

Rosenkrantz’ Gate 16, 0160 Oslo, Oslo

Nøkkelinformasjon

  • InnflyttingLedig etter avtale
  • GårdeierThon Eiendom
  • KontorplasserMulighet for 60 - 70 arbeidsplasser pr etasje
  • P-plasser6
  • Byggeår2011
  • Renovert år2019
  • Etasje7.
  • EnergimerkingC
  • Type lokaleKontor
  • BeliggenhetOslo
  • Totalt arealFra 1000 til 7800 m²
  • AdresseRosenkrantz’ Gate 16, 0160 Oslo, Oslo

Område

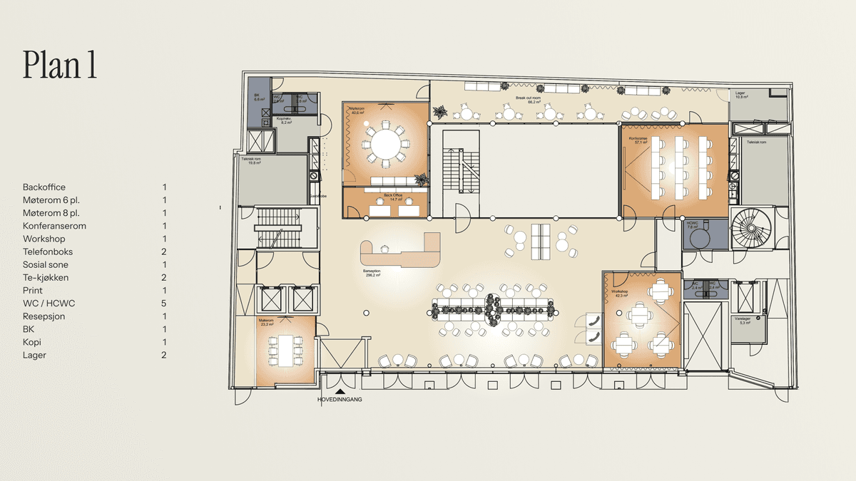
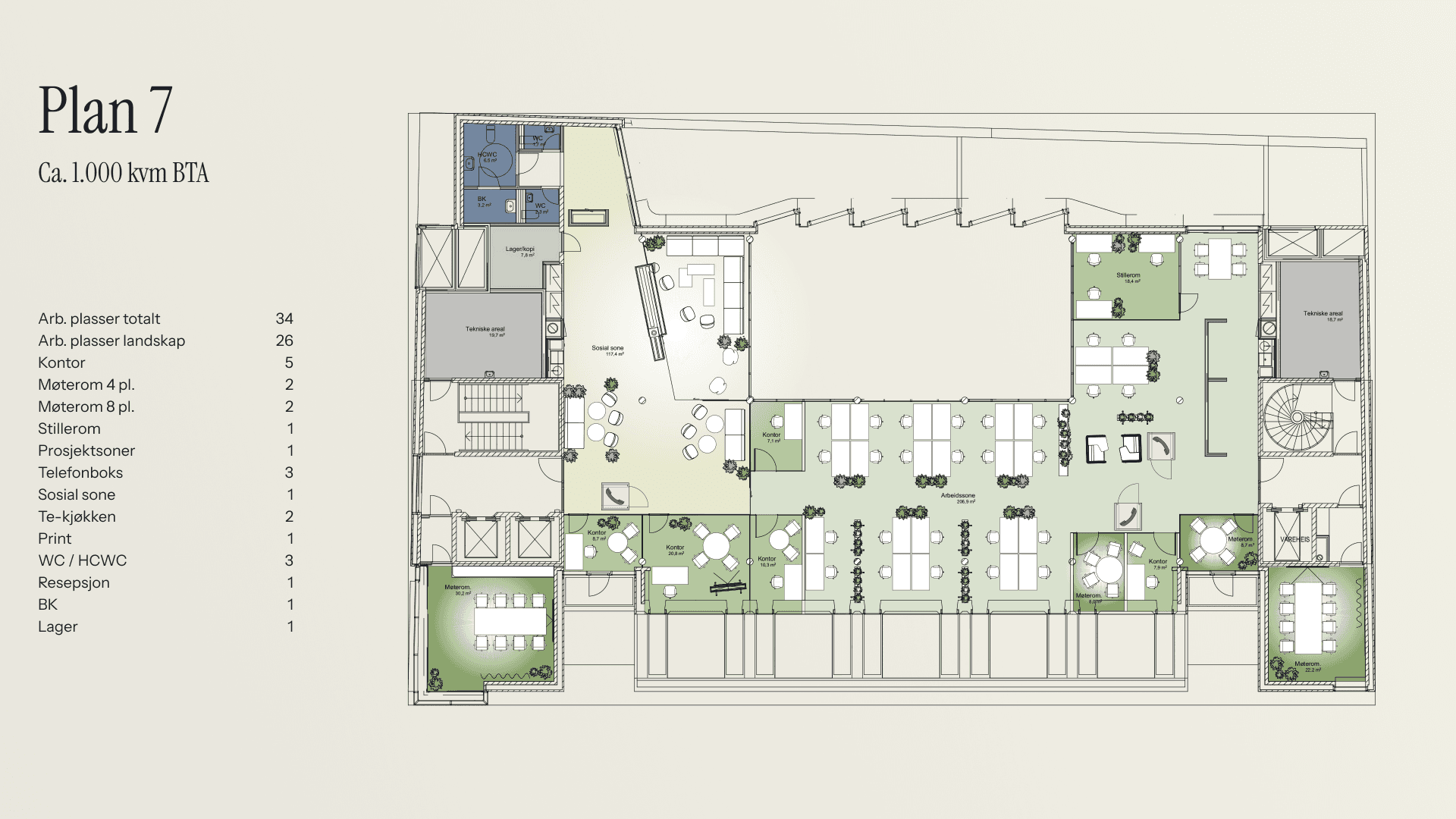
Plantegninger

Fasiliteter

  • møterom
  • resepsjon
  • kantine
  • kaffebar
  • balkong
  • garderobe
  • trening
  • garasje
  • lading
  • sykkelparkering
  • sykkelservice
  • utsikt

Kontakt megler

Ole Ottesen
Rådgiver utleie