Hopp til innhold
Lager og logistikk, Kombinasjonslokaler, Kontor
Fra 947 til 2166 m²

Ringnesveien 19, 0978 Oslo, Oslo

Attraktivt kombinasjonsbygg sentralt i Groruddalen

Nøkkelinformasjon

  • InnflyttingQ1-2026
  • GårdeierUnited Bakeries Holding AS
  • P-plasser25
  • Byggeår1985
  • Type lokaleLager og logistikk, Kombinasjonslokaler, Kontor
  • BeliggenhetOslo
  • Totalt arealFra 947 til 2166 m²
  • AdresseRingnesveien 19, 0978 Oslo, Oslo

Beliggenhet

Eiendommen ligger på Nedre Rommen, i bydel Stovner nordøst i Oslo. Nedre Rommen er i dag et stort industri- og logistikkområde, med flere aktører innen varehandel, bygg og anlegg, transport, og lager/logistikk. Det er enkel adkomst til Østre Aker vei og E6, samt til Riksvei 4 via Stovner. Området er svært attraktivt og har tilnærmet null ledighet.

Område

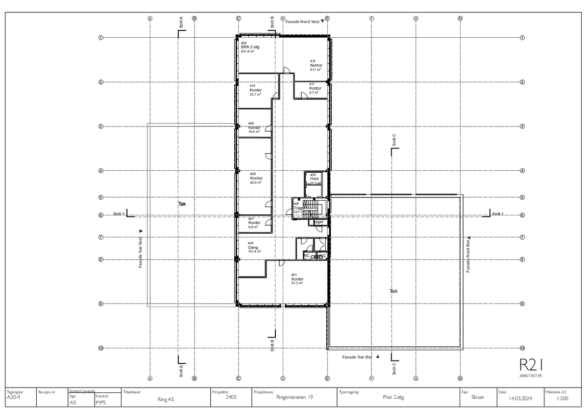
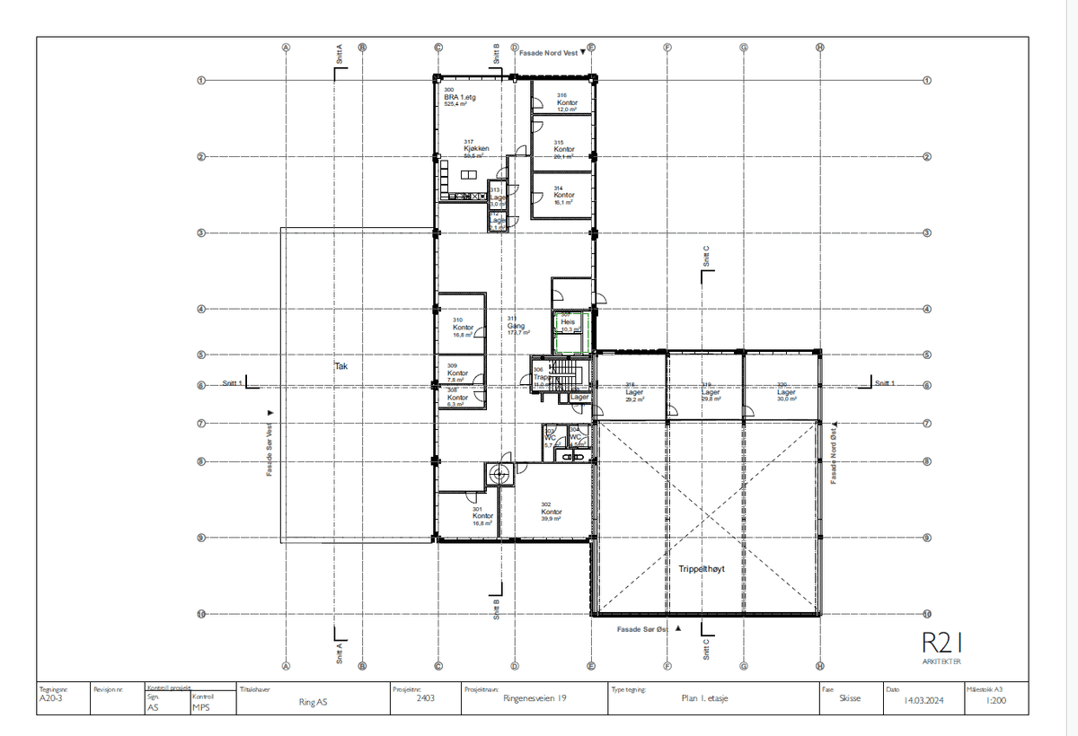
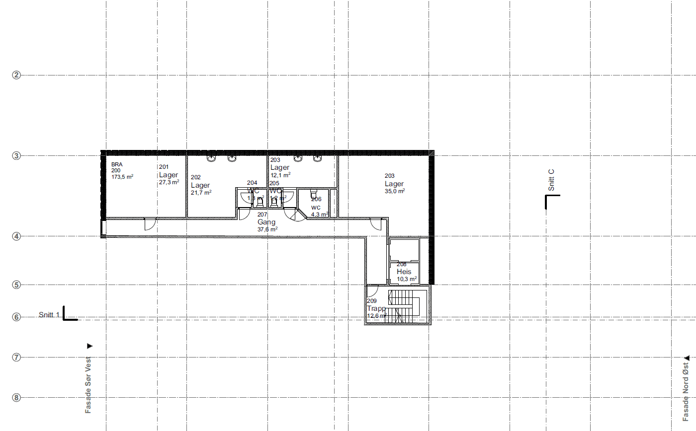
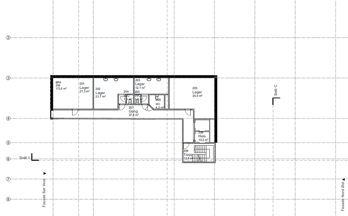
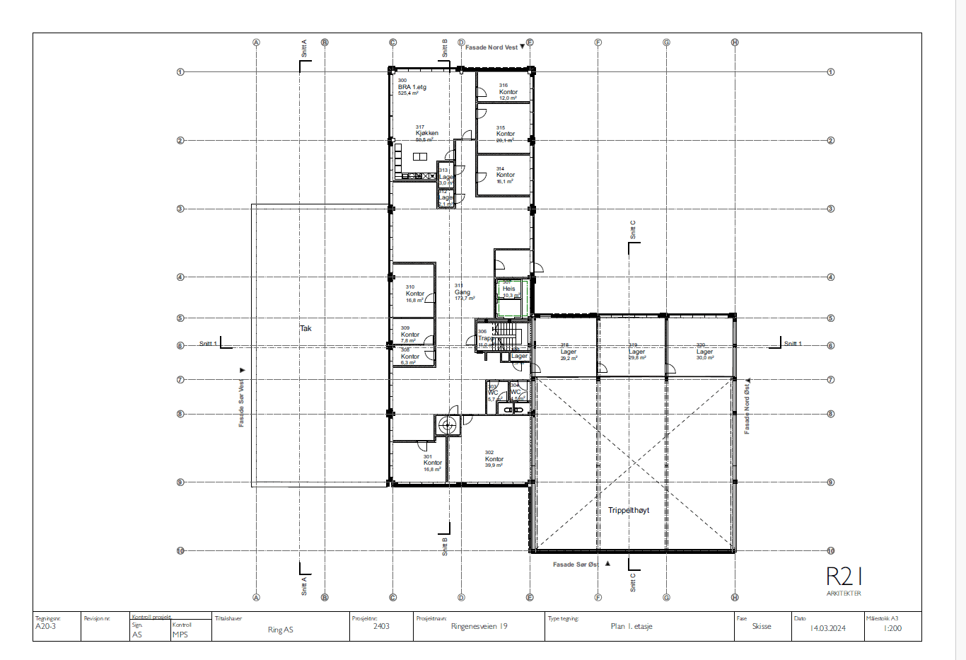
Plantegninger

Generelt

Attraktiv kombinasjonseiendom sentralt i Groruddalen ledigstilles i 1. kvartal 2026. Eiendommen er i dag benyttet til lager-, service og kontorformål. Ved ny utleie vil man kunne endre på bruken av lokalene, og det legges opp til større andel lagerlokaler, evt også med mulighet for proffhandel. Bygget går over tre plan med parkeringsplasser på både øvre del (nord-øst på eiendommen ved inngang til kontorene) og nedre del i tilknytning til lagerarealene.

Totalt er det 3 kjøreporter i lagerarealene, hvorav to befinner seg på hver side av høytlageret, samt mulighet for direkte innkjøring til 1. etasje.

Parkering på to nivåer på tomten, og gjennomkjøring ved lagerhallen.

Det er montert traverskran i lagerhallen, som muliggjør håndtering av tungt materiell.

Arealer:

  • Lager underetasje: Ca 1.119 kvm med fri takhøyde på 6 og 4,5 meter.

  • Lager/kontor 1. etasje: Ca 557 kvm, inkludert lagermesanin. Kantine/spiserom, og cellekontorer/møterom. Inndelingen kan endres, om ønskelig

  • Kontor 2. etasje: Ca 454 kvm, cellekontorer og møterom. Inndelingen kan åpnes opp, eller endres på annen måte

Se plantegninger for nærmere om dagens inndeling, eller ta kontakt for å avklare andre muligheter.

Parkering
Det er i dag 25 oppmerkede parkeringsplasser, men det er plass på tomten til å utvide dette antallet ved behov.

Regulering
Eiendommen er regulert til industri, som gir et stort spenn av mulige virksomheter som tillates.

  • garasje
  • Kjøreport

Kontakt megler

Knut Erik Olderkjær
Rådgiver utleie