- Malling.no/
- Lokaler til leie/
- Karihaugveien 89
Karihaugveien 89, 1086 Oslo, Norge
Nøkkelinformasjon
- GårdeierMalling & Co Næringsmegling AS
- BeliggenhetOslo
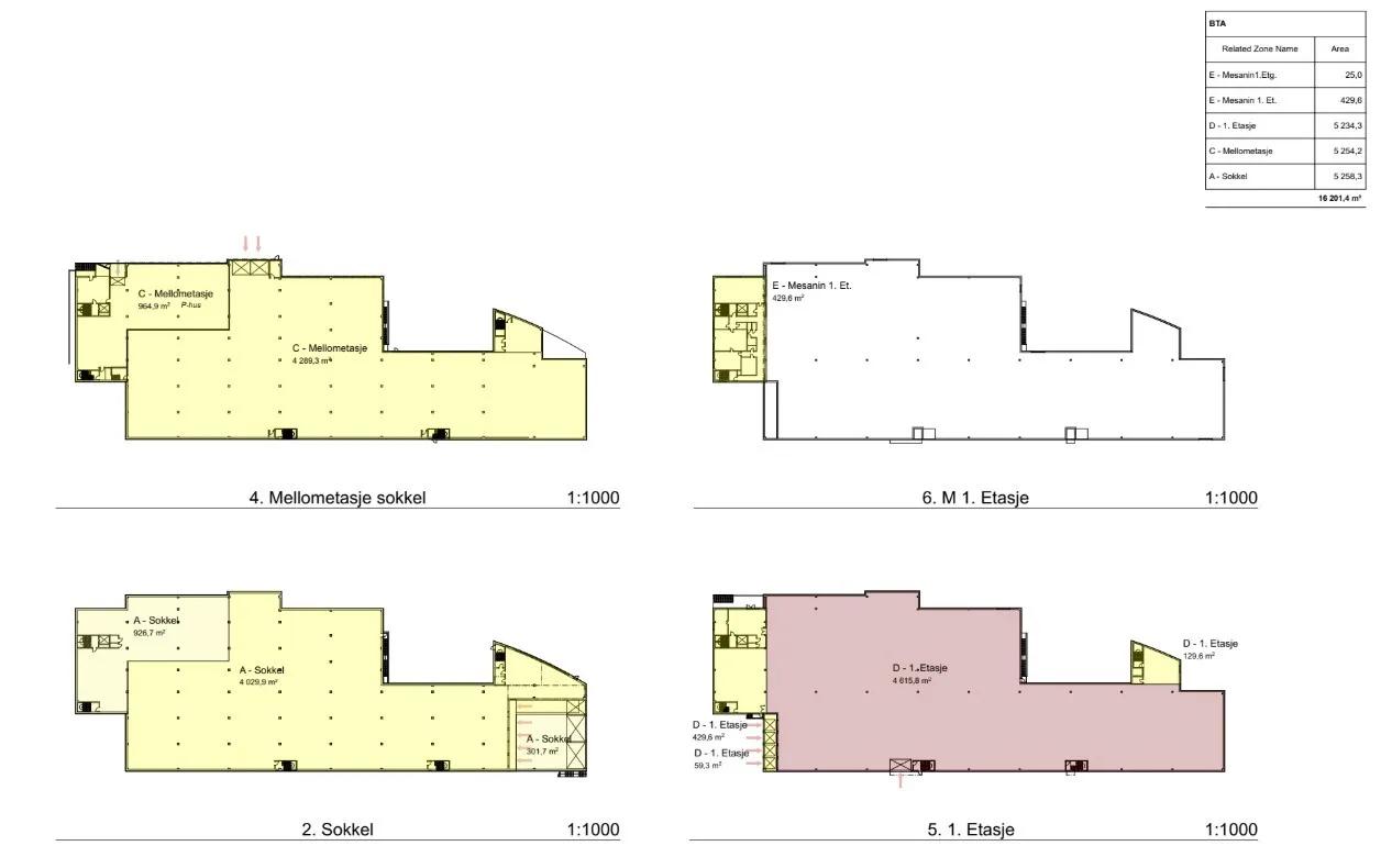
- Totalt arealFra 3000 m² til 16000 m²
- AdresseKarihaugveien 89, 1086 Oslo, Norge
Område
Nå har du muligheten til å sikre deg lokaler i et topp moderne lager- og kombinasjonsbygg. Bygget oppføres over to plan – begge med direkte innkjøring fra bakkeplan, kjøreporter og enkel tilkomst for vogntog. Med en fri takhøyde på 6–10 meter legges alt til rette for effektiv drift, fleksible løsninger og høy arealutnyttelse. Ved behov kan bygget deles opp slik at det blir et flerbrukerbygg.
Prosjektet utvikles med robuste og fremtidsrettede bygningskvaliteter – tilpasset virksomheter som ønsker lave drifts- og vedlikeholdskostnader. Standard, miljøprofil og tekniske løsninger kan skreddersys i samarbeid med leietaker, slik at bygget møter både dagens og morgendagens behov.
Dette er en god mulighet for større virksomheter som ønsker å samle hovedkontor, lager og produksjon i samme eiendom.
Med plassering på høyden over E6 får man en eksepsjonell eksponeringsflate mot millioner av forbipasserende biler hvert år – en reklameverdi få eiendommer kan matche.
Utleier kan i tillegg tilby attraktive fellestjenester gjennom nabobygget, som blant annet moderne kontorlokaler, kantine, treningsrom og auditorium. Dermed får leietakere en komplett og fremtidsrettet arbeidsplass.


