Hopp til innhold
  1. Malling.no/
  2. Lokaler til leie/
  3. Ekebergveien 1 - Servering
Personalrestaurant/kantine
Fra 166 til 166 m²

Ekebergveien 1, 0192 Oslo, Oslo

Serveringslokale til leie i Oslo Hospital – synlig beliggenhet ved trikk

Attraktivt serveringslokale på 166 kvm BTA til leie i Oslo Hospital. Lokalet får en strategisk og svært synlig beliggenhet direkte mot trikkeholdeplass, noe som gir god eksponering og tilgjengelighet for både forbipasserende og lokale besøkende.

Oslo Hospital er et veletablert og sjarmerende byområde med tydelig identitet og stabil kundestrøm. Området har en god miks av boliger, kontorer, kultur og handel, og tiltrekker seg både lokale beboere, arbeidstakere og forbipasserende – særlig i sommerhalvåret hvor uteservering gir ekstra potensial.

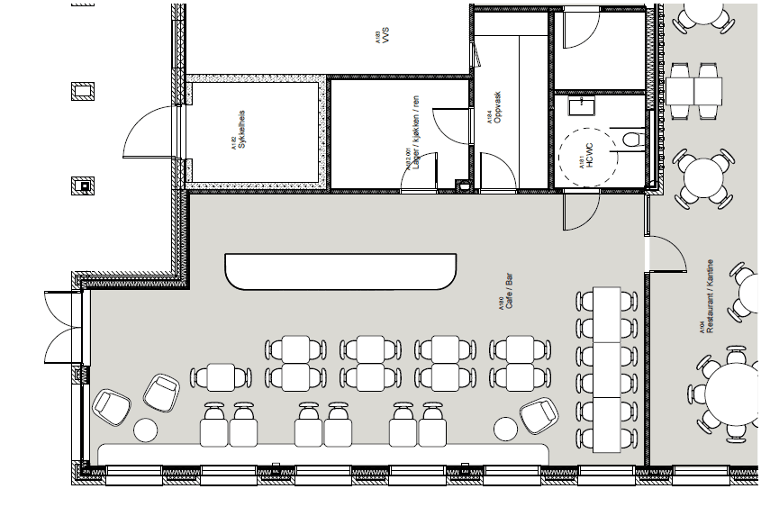
Lokalet ligger på bakkeplan og egner seg godt for kafé, restaurant, bakeri eller annen serveringsvirksomhet. Arealet kan tilpasses leietakers konsept og behov.

Nøkkelinformasjon:

  • Areal: 166 kvm BTA

  • Formål: Servering

  • Beliggenhet: Oslo Hospital – direkte mot trikkeholdeplass

  • Plassering: Bakkeplan

  • Uteservering: Mulighet

  • Overtakelse: Sommeren 2026

  • Standard: Innflytningsklart etter avtale

Dette er en spennende mulighet for serveringsaktører som ønsker å etablere seg i et synlig og tilgjengelig byområde med særpreg og historie.

Ta kontakt for mer informasjon eller for å avtale visning.

Nøkkelinformasjon

  • InnflyttingQ2-2026
  • Type lokalePersonalrestaurant/kantine
  • BeliggenhetOslo
  • Totalt arealFra 166 til 166 m²
  • AdresseEkebergveien 1, 0192 Oslo, Oslo

Område

Plantegninger

0

Kontakt megler

Kenneth Olsen
Head of Retail
Liv Zeinab Lyster Edo
Advisor Retail