Hopp til innhold
  1. Malling.no/
  2. Lokaler til leie/
  3. Bøler senter - Kontorlokaler
Kontor, Lager og logistikk, Handel, Kombinasjonslokaler, Industri, Personalrestaurant/kantine, Annet
Fra 225 til 225 m²

Utmarkveien 1, 0689 Oslo, Oslo

Fleksibelt næringslokale ved Bøler Senter – perfekt for kontor, helse, handel eller lager

Dette arealet ligger rett utenfor Bøler Senter og gir en sjelden kombinasjon av synlighet, enkel adkomst og fleksibel bruk. Lokalet har tidligere vært benyttet som legekontor, men egner seg like godt til kontor, showroom, behandlings-/helserelatert virksomhet, butikk, eller mindre lager/logistikk.

Lokalet byr på:

  • Praktisk planløsning som kan tilpasses ulike konsepter

  • Kort avstand til kollektivtransport og gode parkeringsmuligheter

  • Trygg og etablert beliggenhet med jevn kundestrøm

  • Umiddelbar nærhet til servicetilbud på Bøler Senter

Et godt valg for virksomheter som ønsker en tilgjengelig og effektiv base i et attraktivt boligområde.

  • Innflytting: Ledig nå

  • Beliggenhet: Bøler senter

  • Offentlig transport: 3 minutters gange til Bøler T-banestasjon

Interessert i å høre mer om muligheten?
Ta kontakt for en uforpliktende prat.

Nøkkelinformasjon

  • InnflyttingLedig nå
  • Type lokaleKontor, Lager og logistikk, Handel, Kombinasjonslokaler, Industri, Personalrestaurant/kantine, Annet
  • BeliggenhetOslo
  • Totalt arealFra 225 til 225 m²
  • AdresseUtmarkveien 1, 0689 Oslo, Oslo

Område

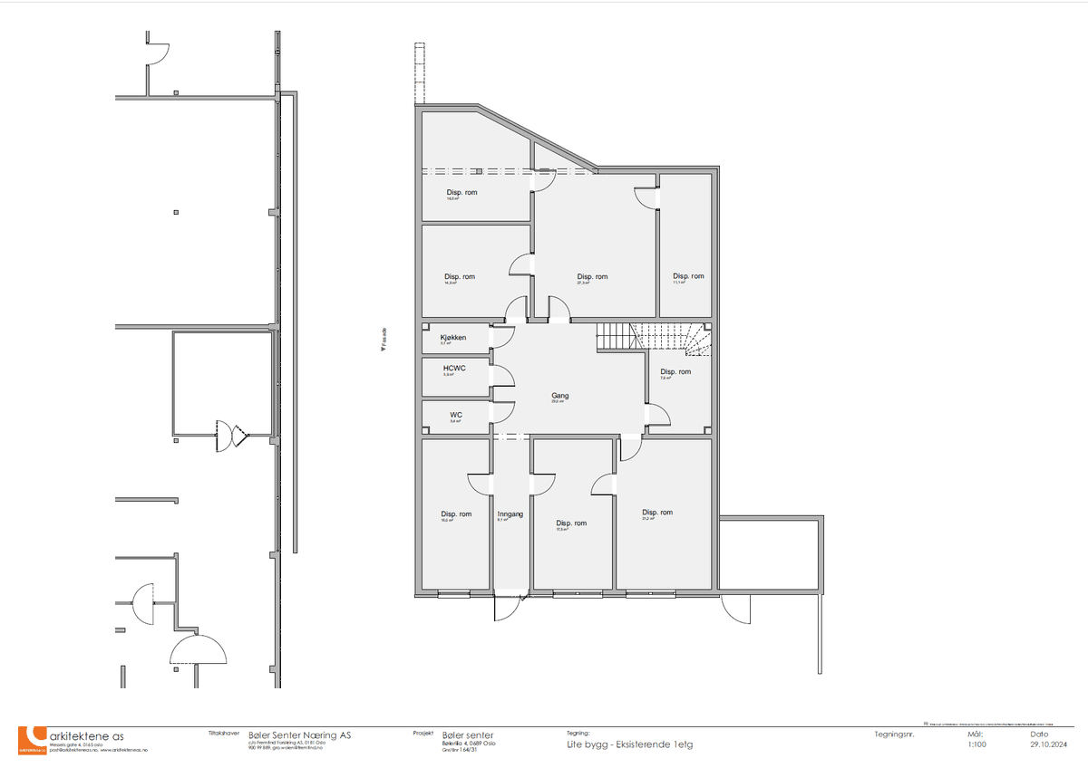
Plantegninger

0

Kontakt megler

Kenneth Olsen
Head of Retail
Liv Zeinab Lyster Edo
Advisor Retail