Hopp til innhold
Kontor, Lager og logistikk, Kombinasjonslokaler, Verksted
Fra 450 til 1350 m²

Refstadveien 27, 0589 Oslo, Oslo

Nøkkelinformasjon

  • InnflyttingLedig nå
  • GårdeierBjerke Travbane Eiendom
  • P-plasser100
  • Type lokaleKontor, Lager og logistikk, Kombinasjonslokaler, Verksted
  • BeliggenhetOslo
  • Totalt arealFra 450 til 1350 m²
  • AdresseRefstadveien 27, 0589 Oslo, Oslo

Sentralt og med en nydelig utsikt over Oslo

Bjerke Travbane ligger på Bjerke i Oslo, bare 10 minutter fra sentrum med bil. Enkel adkomst med bil via Trondheimsveien (E6) og god kollektivdekning gjør området svært enkelt tilgjengelig.

Travbanen er en institusjon og et kjent landemerke i Groruddalen. Banen har i nesten hundre år vært et samlingspunkt for både sport, kultur og opplevelser, og kombinerer i dag en synlig, tilgjengelig og profilert beliggenhet med moderne fasiliteter og et levende nærmiljø.

Det foreligger betydelige utbyggingsplaner rundt og ved travbanen. Sammen med Selvaag Bolig er Bjerke Travbane Eiendom godt i gang med planleggingen av 1500 nye boliger, men også kultur, handel og grønne torg. Dette vil gjøre Bjerke til et naturlig sentrum og møtested i Groruddalen.

Område

  • Buss2 min
  • Parkering1 min

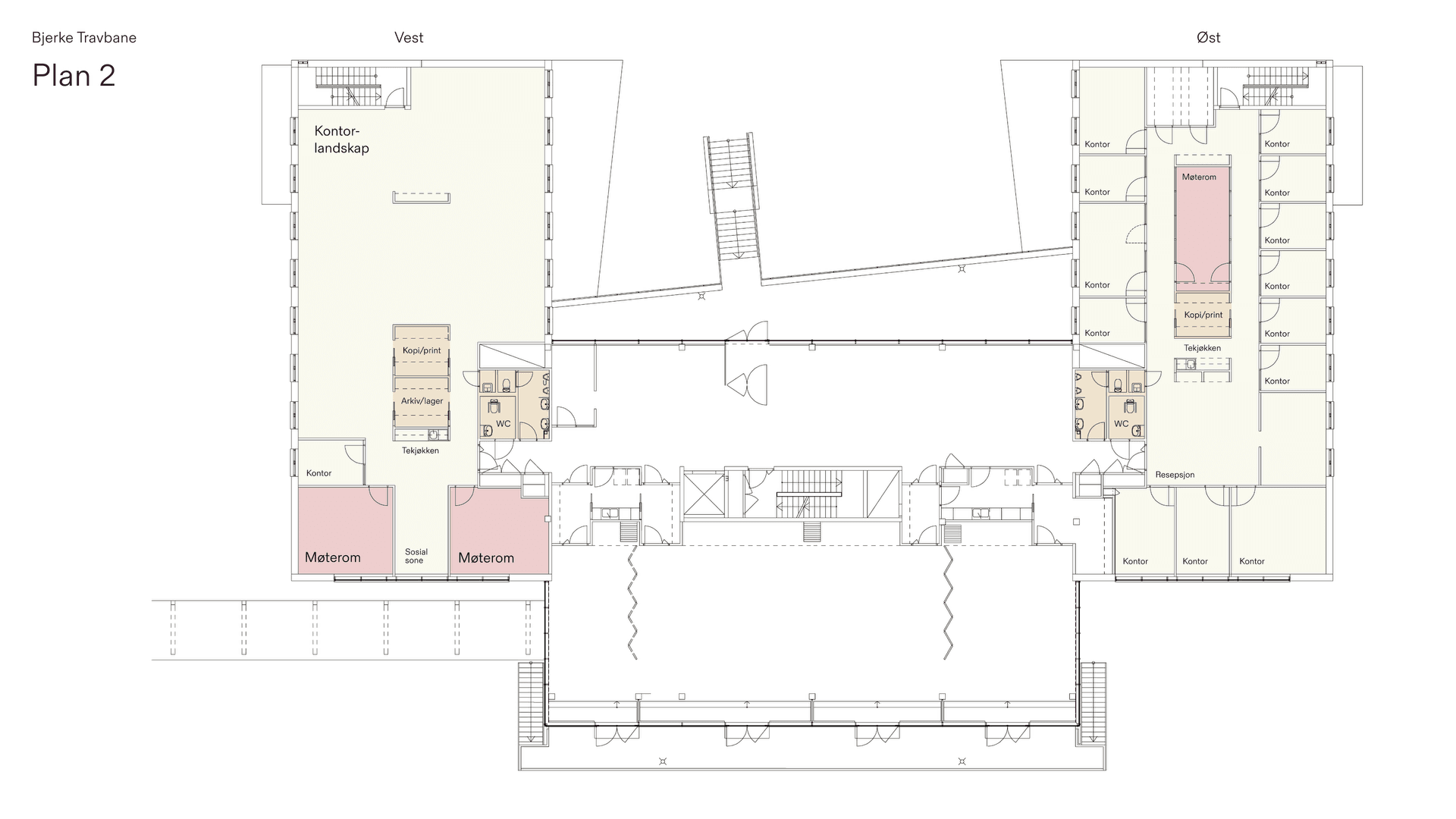
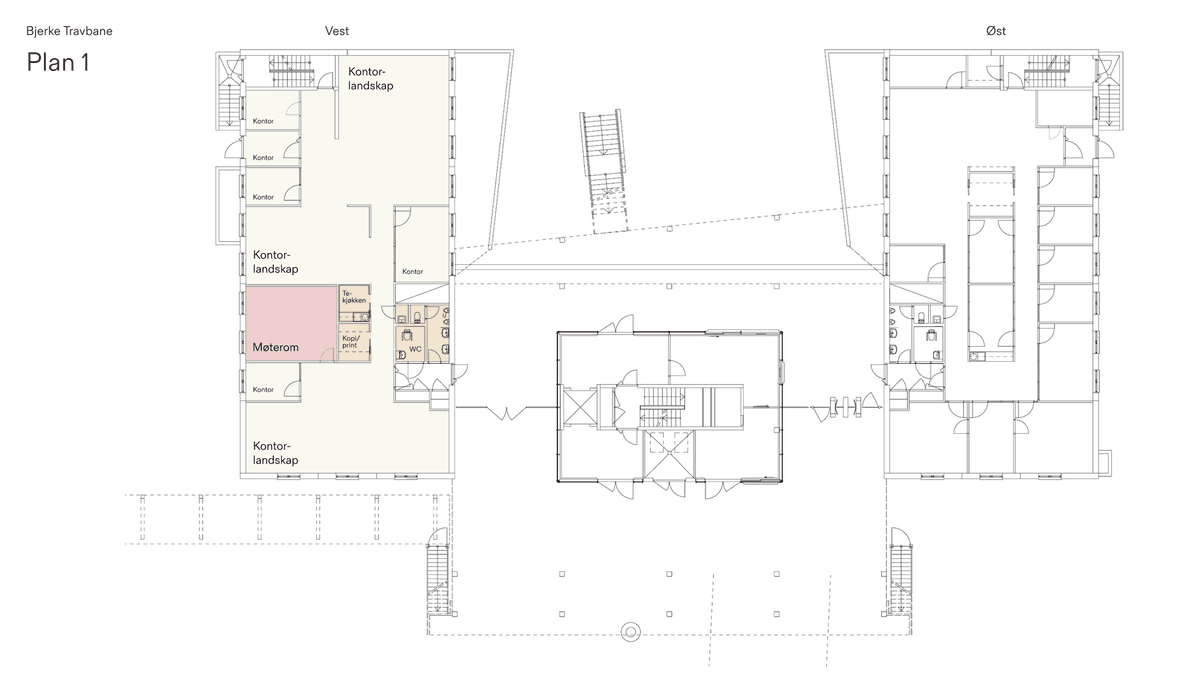
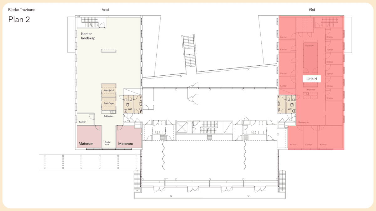
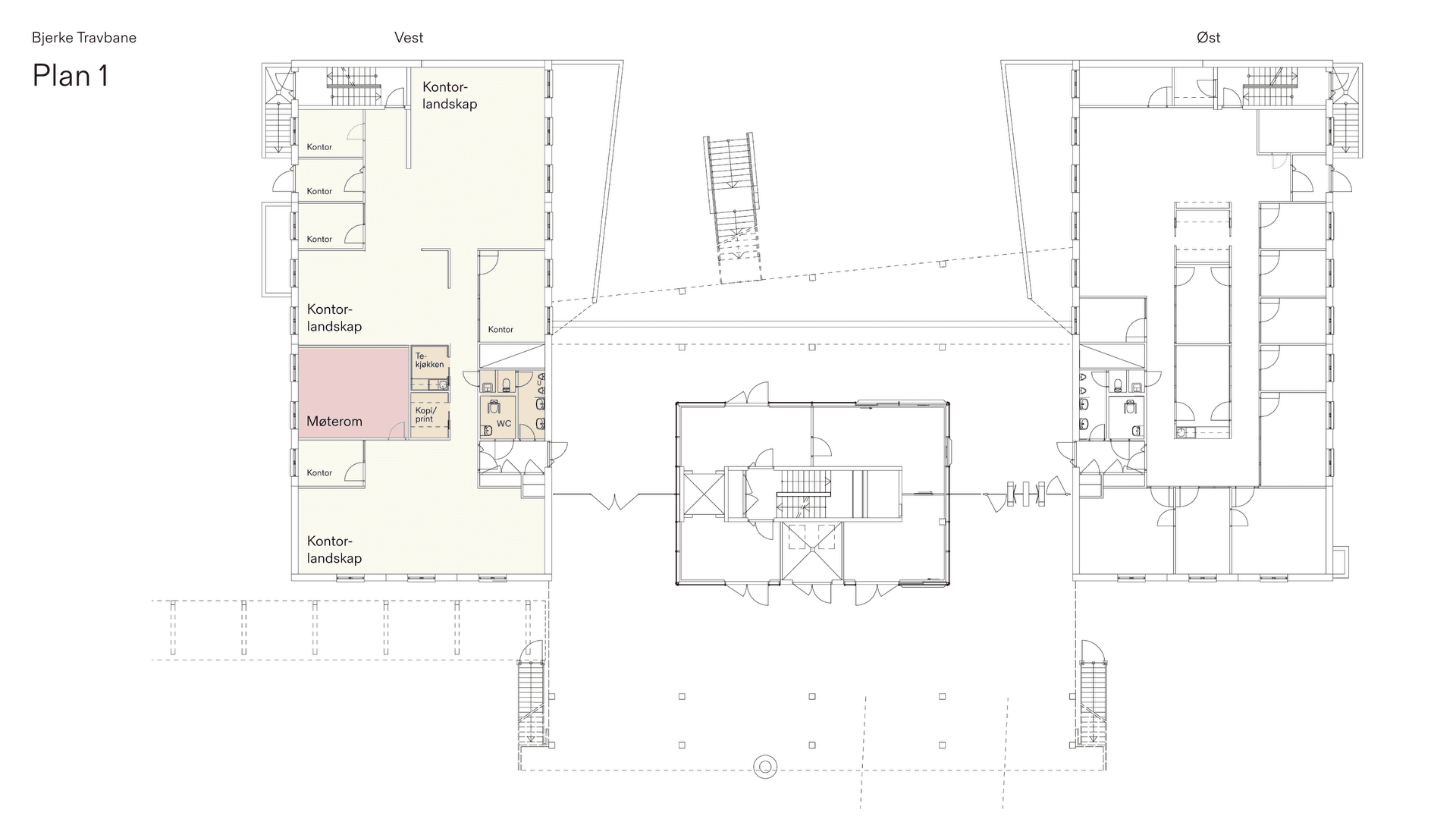
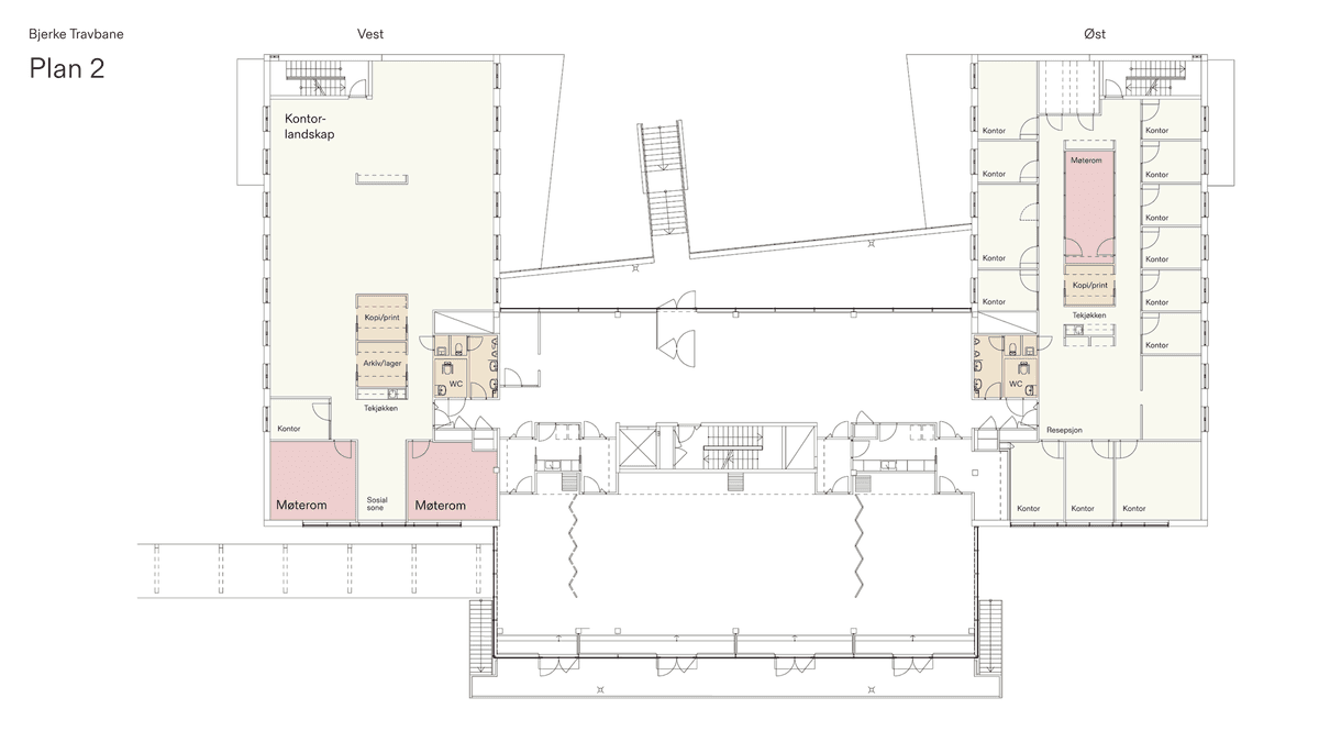
Plantegninger

Gode kontor- og lagerlokaler

De ledige kontorarealene ligger i Hestesportens Hus. Arealene fordeler seg over tre ulike lokaler, hvor hvert er på mellom 400 og 500 kvadratmeter. De to kontoretasjene er av god standard og egnet for leietakere med behov for arbeidsplass for mellom 25 og 30 medarbeidere.

De to ledige kontoretasjene ligger i byggets første og andre etasje og er blant annet utrustet med sosiale soner og kjøkken. Lokalene egner seg svært godt for lokale næringslivsaktører i Oslo øst som ønsker seg kvalitetslokaler med enkel adkomst og god tilgjengelighet. Både privat næringsliv, men også offentlige aktører kan være aktuelt.

Det tredje lokalet er et arealeffektivt lagerlokale. Lokalet passer fint for aktører med kombinerte behov og derfor er på jakt etter både lager og kontorer. Lokalene kan selvsagt også leies alene.

  • garasje
  • bredbånd
  • Alarm
  • møterom
  • kantine
  • balkong
  • sykkelparkering
  • lading
  • heis
  • Turterreng
  • utsikt

Bjerke Travbane Eiendom

Bjerke Travbane eies av Bjerke Travbane Eiendom. Selskapet står for utleie og utvikling av eksisterende eiendomsmasse, men også planene for området. Visjonene er store, og målet er Bjerke Travbane og nærområdet skal bli et vitalt og levende nærsenter i Groruddalen. For eierselskapet er det viktig at denne utviklingen skjer på travsportens premisser. Hest kommer derfor også i fremtiden til å være best på Bjerke.

Kontakt megler

Jørgen Kaada-Rønning
Rådgiver Marked og Utleie Kontor Oslo