- Malling.no/
- Lokaler til leie/
- Arbins gate 2
Kontor
Fra 203 til 203 m²
Arbins Gate 2, 0253 Oslo, Oslo
Vakker bygård - Smakfulle kontorlokaler rett ved Nationaltheateret
I 4. etasje i Arbins gate 2 tilbys et lyst og effektivt kontorlokale på 203 kvm. BTA. Eiendommen ligger i et attraktivt og veletablert kontorområde i sentrum, med umiddelbar nærhet til Nationaltheateret og med Slottsparken som nærmeste nabo.
Lokalene har en gjennomgående god standard og fin planløsning som egner seg godt for de fleste. Store vindusflater gir rikelig med dagslys og et behagelig arbeidsmiljø.
Med kort gangavstand til kollektivtransport, service- og handelstilbud, samt Oslos mest sentrale forretnings- og næringsliv, er dette et ideelt valg for virksomheter som ønsker en representativ og tilgjengelig beliggenhet.
Nøkkelinformasjon
- InnflyttingLedig nå
- P-plasser0
- Byggeår1897
- EnergimerkingE
- Type lokaleKontor
- BeliggenhetOslo
- Totalt arealFra 203 til 203 m²
- AdresseArbins Gate 2, 0253 Oslo, Oslo
Område
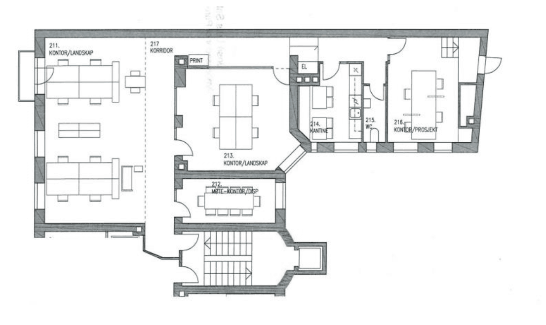
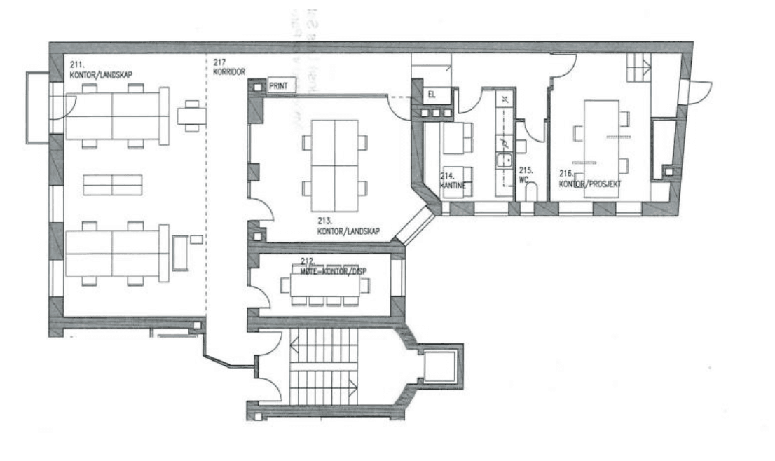
Plantegninger
Fasiliteter
- balkong
Prospektside
Kontakt megler
Jørgen Kaada-Rønning
Rådgiver Marked og Utleie Kontor Oslo